Celkem 18 fotografií, zobrazit všechny
Prodejce:
realitní makléř: Eva Kubátová
Eva Kubátová
telefon: 725967067
eva.kubatova@sorent.cz

Máte dotazy? Nezávazně nás kontaktujte:

* Vaše jméno
* Váš email
* Telefon
* Váš vzkaz
 
  Odesláním dotazu zároveň souhlasíte se zpracováním osobních údajů

Finanční kalkulačka

Líbí se Vám tato nemovitost, ale nemáte v současné době dostatek finančních prostředků? Rádi Vám poskytneme možnost financování.


Částka:

Úrok:
%

Doba splácení:
let

Měs. splátka:

Prodej prostorného bytu 3+kk, 2 balkony a šatna, Veselí nad Lužnicí – ulice Weisova

Cena:
4.590.000 ,-
Popis nemovitosti:

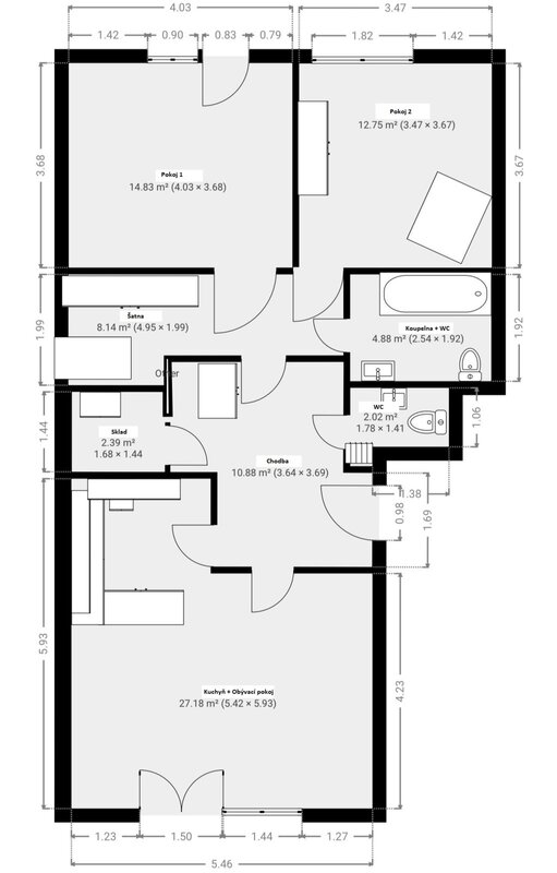
Nabízíme k prodeji velmi pěkný a dobře řešený byt o dispozici 3+kk s užitnou plochou 89 m², který se nachází ve 2. patře zděného bytového domu v ulici Weisova ve Veselí nad Lužnicí. Dům byl postaven v roce 1999 a nachází se v příjemné, udržované zástavbě s výbornou dostupností do centra města.

Byt působí vzdušně a nabízí funkční dispoziční uspořádání:

obývací pokoj (20 m²) propojený s kuchyňským koutem (6,7 m²),

dětský pokoj (14 m²),

ložnice (12,6 m²),

předsíň (9 m²),

koupelna (4,3 m²),

samostatné WC (1,8 m²),

komora (2,5 m²),

šatna (8 m²).

K bytu náleží dva balkony (5,6 m² a 4,4 m²) s pěkným výhledem do okolí.
Vytápění zajišťuje nový samostatný plynový kondenzační kotel z roku 2023, který slouží i k ohřevu vody. Energetická náročnost budovy: třída D.

Parkování je možné veřejně před domem a v jeho blízkosti.
V okolí se nachází škola, školka, dětské hřiště, obchody i autobusová zastávka, vše v pohodlné pěší vzdálenosti. Lokalita je klidná, s množstvím zeleně a dobrým napojením na hlavní dopravní tahy směrem na České Budějovice, Tábor a Prahu.

Typ nemovitosti:
Byt
Číslo nemovitosti:
CB251111
Operace:
Prodej
Rezervace:
Rezervováno
Vlastnictví:
Osobní
Adresa:
Veselí nad Lužnicí
Weisova 620
Plocha balkonu:
10 m2
Podlaží:
2. podlaží
Stav objektu:
Dobrý
Konstrukce:
Cihlová
Umístění objektu:
Centrum obce
Stáří objektu:
1999
Vydaný certifikát:
D - Méně úsporná
Typ certifikátu:
vyhláška č. 264/2020 Sb
Je zobrazena tato GPS souřadnice:
49° 11' 30.324"N, 14° 41' 40.042"E

Zajistíme vám nejvýhodnější financování. Volejte 775 241 735 – p. Miroslav Zedník a 601 142 787 – p. Andrea Pišňová.